
中古マンション
販売価格 13,180 万円
JR高槻駅徒歩4分(屋根付きデッキで直結)41階建て総戸数450戸の駅前ランドマークタワー!2025年12月フルリフォーム済、専有面積89.61㎡、ゆとりある3LDK、角部屋!
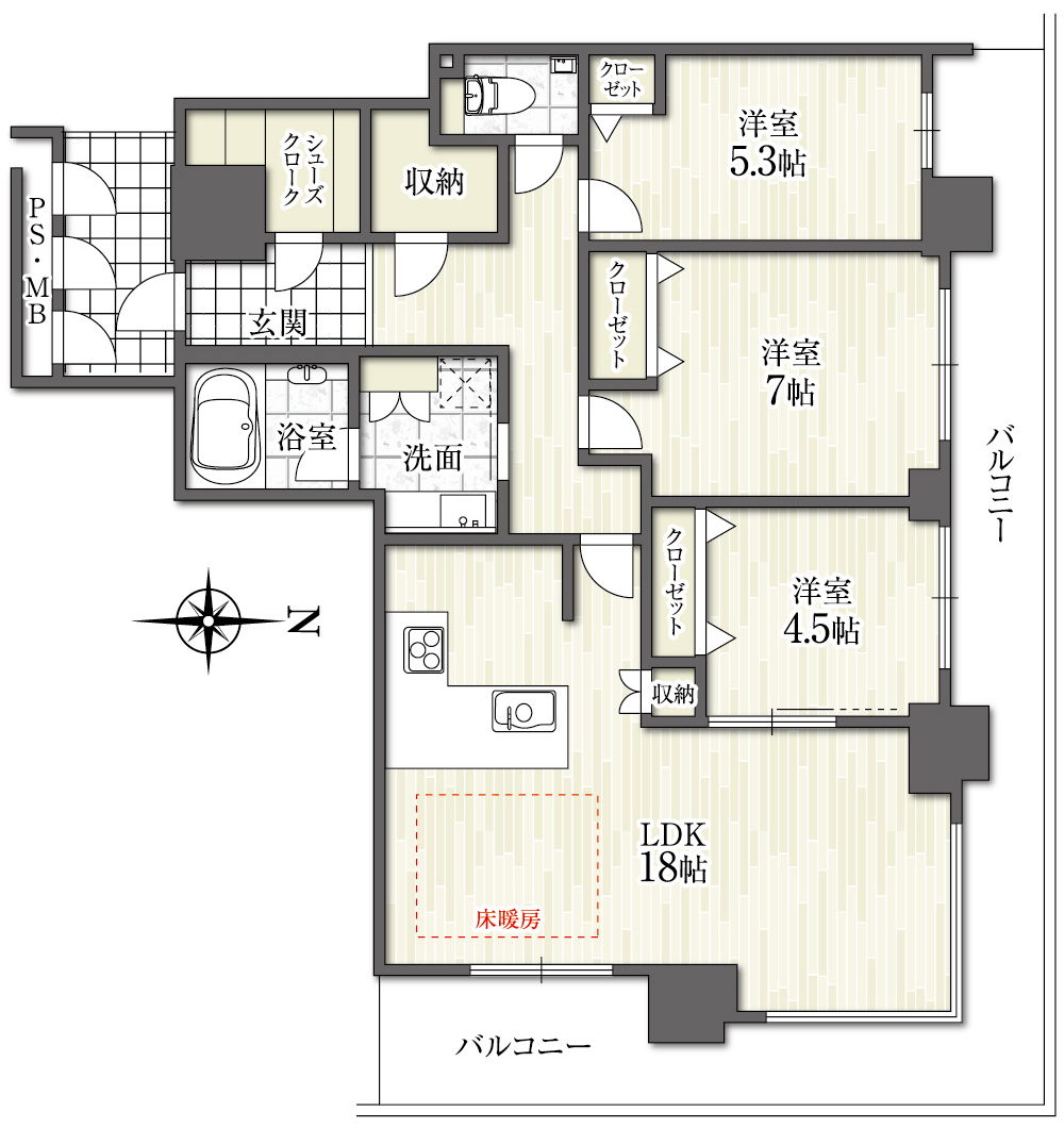
間取りプラン
ROOM PLAN
3LDK
■専有面積/89.61㎡(坪)
■バルコニー面積/26.25㎡(坪)


周辺環境
LOCATION
奥坂小学校
徒歩約18分 (約1,450m)
高槻市立第八中学校
徒歩約20分 (約1,650m)
高槻市立認定こども園
徒歩約15分 (約1,000m)
高槻阪急スクエア、関西スーパー、アルプラザ高槻、松坂屋、他にも徒歩圏に商業施設が大変充実しています!
高槻阪急スクエア
徒歩約1分 (約80m)
アルプラザ高槻
徒歩約5分 (約400m)
松坂屋高槻店
徒歩約6分 (約450m)
セブンイレブンミューズ高槻店
徒歩約1分 (約50m)
高槻病院
徒歩約4分 (約300m)
安満遺跡公園
徒歩約15分 (約1,000m)
三菱UFJ銀行
徒歩約1分 (約50m)
三井住友銀行高槻駅前支店
徒歩約3分 (約240m)
高槻天神の湯
徒歩約8分 (約620m)
物件概要
outline
| 種別 | 中古マンション |
|---|---|
| マンション名 | ジオタワー高槻ミューズフロント |
| 所在地 | 高槻市白梅町4‐8 |
| 交通 | JR「高槻」駅徒歩4分 阪急「高槻市」駅徒歩12分 |
| 専有面積 | 89.61㎡ |
| バルコニー面積 | 26.25㎡ |
| 販売価格 | 13,180万円 |
| 管理費 | 18,450円 |
| 修繕積立金 | 17,950円 |
| 構造 | 鉄筋コンクリート・鉄骨造陸屋根41階建 |
| 築年月 | 2012年3月 |
| 現況 | 空家 |
| 管理方式 | 全部委託 |
| 引渡 | 相談 |
| 設備 | 食洗器付きシステムキッチン 床暖房 浴室暖房乾燥機 温水洗浄便座 シューズインクローゼット ダブルロックドア 宅配ボックス 防犯カメラ 共用ゲストルーム 車寄せスペース |
| 取引態様 | 媒介 |
※現況と相違がある場合は現況を優先いたします。
住宅ローンシミュレーション
必要事項をご入力して「計算する」ボタンを押してください。
月々の返済額
円
※住宅ローンのご返済シミュレーションツールです。